Bureaux spacieux à louer, emplacement stratégique proche de l’aéroport.

CHF 12'450 / mois

Résumé

  • 650.00 m2

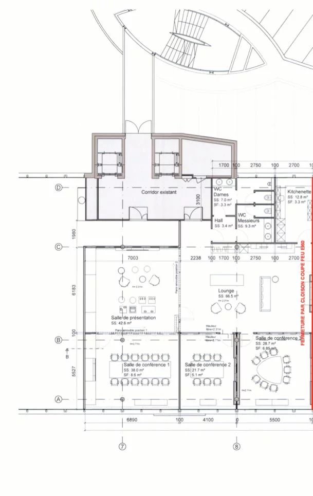
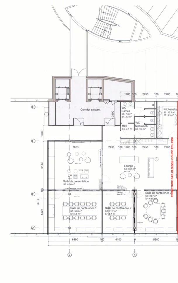
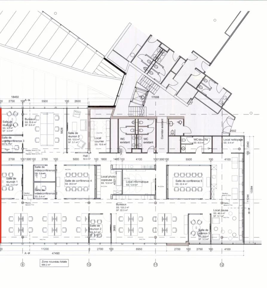
À quelques pas du centre commercial ARCenter et à proximité des commodités ainsi que des axes autoroutiers, nous vous proposons une vaste surface de bureaux de 650 m² située au 2e étage. Emplacement idéal à quelques minutes de l’aéroport et des transports en commun.

Ce bel espace dispose de deux entrées indépendantes et est accessible par trois ascenseurs.

Il comprend 3 open spaces, 4 salles de conférence, 9 bureaux cloisonnés, 2 locaux IT, 1 local de stockage, 2 cuisines et 6 sanitaires, dont un avec douche. De plus, des douches et un vestiaire sont disponibles au 2e sous-sol.

Cette surface peut être divisé en 2 surface de 230 m2 et 420 m2.
Une belle opportunité à ne pas manquer.

ID du programme neuf : 10883
Prix : CHF 12'450 / mois
Surface habitable: 650.00 m2
Ville:
Zones:
Code Postal: 1214
Pays: Suisse
Ouvrir dans Google Maps

Annonces similaires

Location
Location
Location

Comparer les annonces

Nessel Real Estate