Investissement d’exception – Maison clé en main face au lac

CHF 258'000

Résumé

  • 1 Salle de bains
  • 35.00 m2
  • 200.00 m2
  • Année de construction :2025

Niché sur les rives du lac Léman, Anthy-sur-Léman offre un cadre de vie rare, à seulement 30 minutes de Genève et 10 minutes de Thonon-les-Bains. Ce village prisé séduit par son authenticité, son environnement naturel préservé et son accès rapide aux commodités.

Entre plaisirs nautiques, randonnées en pleine nature et stations de ski toutes proches, vous profiterez d’un lieu de vie idéal en toutes saisons. Une zone commerciale complète se trouve à quelques minutes, facilitant le quotidien.

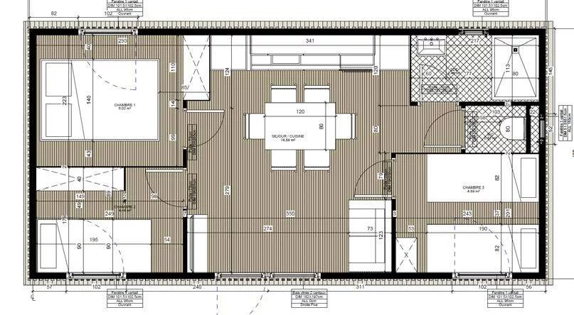
Cette maison d’environ 35m² a été pensée pour accueillir jusqu’à 6 personnes dans un espace parfaitement optimisé. Elle se compose de 3 chambres indépendantes, d’une salle d’eau moderne et équipée, et d’un espace séjour/cuisine lumineux et convivial au cœur du plan.

Idéale pour une résidence familiale, une colocation ou un investissement locatif saisonnier, elle conjugue confort, fonctionnalité et ambiance chaleureuse.

Un bien rare sur le secteur, à découvrir sans tarder !

ID du programme neuf : 11035
Prix : CHF 258'000
Surface habitable: 35.00 m2
Taille du lot de propriété: 200.00 m2
Pièces: 5
Salle de bains: 1
Zones:
Code Postal: 74200
Pays: France
Ouvrir dans Google Maps

Comparer les annonces

Nessel Real Estate